IKENOBO

Maison de Quartier – La chapelle Les Sciers

IKENOBO

Le projet « Ikenobo », propose de renforcer le cadre construit qui le compose (paysage, sol, bâti…). La construction existante est conservée en grande partie et son agrandissement reste dans une géométrie similaire à cette dernière opérant une homothétie du volume existant. Afin de conserver une image de «pavillon» en bordure de forêt. Les différents aménagements proposés sont en connexion et en continuité des tracés déjà existant en minimisant leur impact visuel.

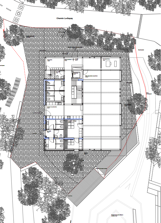
La pointe Sud-ouest du terrain, traite la déclivité naturelle du terrain en façonnant une butte paysagère avec les terres du terrassement.

Ce remodelage renvoie l’eau de pluie sur la noue suitée à proximité et minimise l’impact visuel du pied du bâtiment depuis le Chemin Le Sapay.

Tout autour du bâtiment un pavage drainant renvoie les eaux de pluie vers une cuve de rétention des EP pour éviter une surcharge du bassin de rétention.

Au nord, le tracé et chemin existant sont conservés pour réaliser les entrées dans le bâtiment (entrée principale, toilette publique, cuisine et livraison). Enfin en partie Sud, le deck existant est conservé et allongé pour réaliser un promontoire accessible pour les usagers face au bassin de rétention.

Les bancs existants sont conservés et dupliqués sur le pourtour du bâtiment pour accentuer la continuité du tissage faite par le projet. Les arbres supprimés sont replantés en bordure du bâtiment et renforcer le lisière de la forêt.

L’Ikenobo est un art floral japonais ancestral, il consiste traditionnellement à réunir, après une cueillette sauvage, les sujets végétaux signifiant d’un lieu pour le reconstituer dans un vase adapté à recevoir cet extrait
de paysage.

Petit et grand sujet, résineux, fané, coloré, piquant, gluant, séché… Toutes les espèces végétales et leur différent état composent cette extraction de territoire pour le magnifier.

Cette pratique inspirante, renvoie à des préoccupations plus contemporaines de construire avec le « déjà-là » et la réutilisation de la matière existante pour la magnifier en lui trouvant une nouvelle spatialité/forme dans un paysage déjà formé, cette attitude est celle développée dans le projet «Ikenobo»

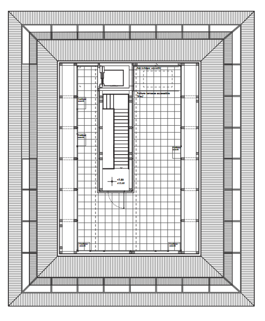
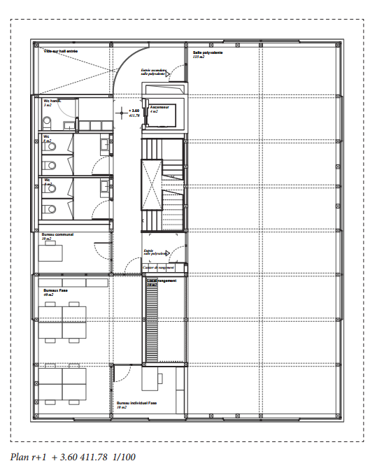
Le bâtiment propose d’être le plus compact possible. La toiture à quatre pentes et une tranche du bâtiment existant sont démolis afin de donner une dimension confortable aux deux salles polyvalentes superposées. L’accès principal au bâtiment se fait depuis le chemin du Sapay. À gauche et à droite du bâtiment existant, sont ajoutés, le noyau vertical de distribution et une partie des toilettes publics. La circulation est continue entre l’existant et le nouveau bâtiment avec un escalier au cœur du dispositif. Au rez￾de-chaussée, la liaison avec la cuisine joue un rôle central pour les usagers. À l’étage, les bureaux sont disposés côté foret et la salle polyvalente face sud. Un dispositif motorisé d’occultation permet de contrôler la luminosité des usagers.



Pour une optimisation et une flexibilité des deux salles, plusieurs accès contrôlés sont possibles, des découpages à l’aide de rideaux acoustique peuvent sont proposés. Enfin, un accès à la toiture terrasse est possible depuis l’ensemble des salles par l’escalier principal. La toiture terrasse est encaissé dans la toiture afin d’offrir un espace extérieur protégé pour les utilisateurs, une partie de cette dernière peut accueillir des équipement technique et ainsi les cacher pour le voisinage proche.

La structure du projet est constituée à huitante pourcent de bois pour de multiples raisons : dialogue direct avec la matérialité du site (foret), allègement du poids de la structure sur l’existant, mise en œuvre plus efficace et sec. La couverture du bâtiment est légère et protège le bois de la zone potentiellement humide du site et assure la pérennité des ouvrages en diminuant leur entretien dans le temps. La tôle en aluminium galvanisé est mat et recyclé.


Le bâtiment existant est conservé en grande partie ; les refends et le radier sont conservés pour sa stabilité. Une ossature poteau/poutre bois vient conforter la zone existante pour assurer une meilleure répartition des charges des nouveaux étages sur l’existant. La proximité avec les ouvrages hydrauliques existants (noue, bassin.) et la volonté de diminuer les volumes de terrassement, favorise l’utilisation de parois berlinoise pour réaliser le niveau de sous-sol du projet. Les terres excavées sont réutilisées pour le nivelage du terrain et la butte existante. Dans un souci de réemplois les terres seront utilisés pour la réalisation de finition intérieure/extérieure du bâtiment.

Dans les étages, un noyau vertical en béton assure le contreventement partiel du bâtiment, celui-ci est complété par des «V» en bois massif. La trame est variable et adaptée sur l’existant (var.2.30m) assure la stabilité du bâtiment. Les planchers sont mixtes en bois/béton et repose sur un solivage c24. Comme expliqué précédemment, la peau en aluminium possède des ouvrants motorisés gérant l’occultation du r+1. Au rez-de-chaussée, des stores extérieurs sont cachés et protégés pour occulter complétement le vitrage. Une attention particulière a été faite sur la ventilation naturelle de tous les locaux. Enfin, une installation de panneau photovoltaïque est positionnée au niveau haut de la toiture. La matérialité du bâtiment se veut simple, robuste et économe.